Bio image

contact

contact@md-2.eu
Zaagmolenstraat 155B, 3036 HK Rotterdam
+31 650 42 70 63

information

md-2 architects is an international architectural practice based in Rotterdam and founded in 2019 by Mahaut Dael (1992, Belgium) and Michał Długajczyk (1989, Poland), both graduated cum laude at the rotterdamse academie van bouwkunst.
through physical models, scenographies, research and renovation projects in the Netherlands and abroad, md-2 architects explores the site specificity of a place, aiming on extracting and revealing its existing material and immaterial layers.
the practice is particularly engaged in the city of Rotterdam which ever evolving character constitutes a challenging framework including thematics such as sustainability, flexibility, and identity.
in 2023, the duo received the talent development grant from the stimuleringsfonds, to develop their research 'description by design', translating surrealist methodologies into architectural instrumentarium.
md-2 regularly collaborates with cross-disciplinary artists, opening the field of architecture to a wider spectrum of influences.

team

michał długajczyk
mahaut dael

former

richard m​údry
emma bellessort
edward zammit 
szu-yi wang 
daria kozhina 

awards

1st prize for the scenography design competition, poznan town hall, 2026
talent development grant, stimuleringsfonds, 2023-2024
archiprix nomination, 2020

scenographies

poznan town hall permanent exhibition, on-going, 2026
sorcelleries, hde draguignan, 2026 (2d place)
on stage, ravb graduation show, huidenclub, 2025
wild summer of art, brutus rotterdam, 2025
tutti frutti, citrusveiling rotterdam, 2024
dammer, het nieuwe instituut, 2021
from where we know, kabk gd department graduation show, 2021
on our own time, kabk gd department graduation show, 2020

exhibitions

skew it, de aanschouw, rotterdam, 2025
no time to waste - current traces 02, omi rotterdam, 2025
stimuleringsfonds presents talent, dutch design week eindhoven, 2024
ministerie van maak, IABR, it's about time, 2022
future generations, IABR, it's about time, 2022
dammer, het nieuwe instituut, 2021
archiprix 2020, het nieuwe instituut, 2020

publications

wpoznaniu.pl/to-on-bedzie-projektowal-wystawe-w-samym-sercu-miasta-znamy-jego-wizje-zdjecia
metropolism - wild summer of art
elle interieur - wild summer of art
platform talent development 2023-2024 - md-2 architects
huig magazine - rotterdamse praktijken
archined - archiprix 2020, de beste nederlandse afstudeerplannen
desired spaces - what design can do, 2020

teaching & lectures

tu delft, argus in conversation, lecture, 2025
the berlage, workshop on model making, 2024
rotterdamse academie van bouwkunst, semesterstudio 'tutti frutti', 2024
tu munich, workshop local building techniques, 2022
rotterdamse academie van bouwkunst, semesterstudio 'description by design', 2022
royal art academy the hague, workshop build-up graduation show, 2021
royal art academy the hague, workshop build-up graduation show, 2020

photography

riccardo de vecchi
szu-yi wang
aad hoogendoorn
laura siliquini
samuele nobili
clara gus
beeldsmits
polagraph
roos pierson
zuzanna zgierska
rhalda jansen
roel backaert

web design

balázs milánik

zz alphen

1/

Transformation and extension of a former restaurant + upper restroom to a flexible space on the ground floor (now a kindergarden) and an independent housing on the 1st floor - Alphen aan den Rijn, 2025

2/

The programme for the 3d major transformation of this 1953 building illustrates the changes in use and lifestyle through time, from a small shop with the owner's modest living space above, to a bigger shop then restaurant with obsolete dependant upper floor, to the creation of a separate entrance for an extended surelevated maisonette with its own outdoor space and a drastic decluttering of the ground floor offering a multifunctional corner space.

3/

The programmatic needs articulate a series of structural and spatial modifications, opening new potentialities while (re)discovering original qualities of the existing.

4/

An example is the new staircase to the flat, its first and last steps unusually turning in opposite directions to optimise the space while connecting two shifted facades.

5/

Another is the extension opening the living area in space, height and light, while creating a playful roof landscape on the outside.

green pavilion

1/

green summer pavilion is a sleeping cabin, a space to retreat, a dodecagonal volume simple in form, strong in expression.

2/

positioned on a huge rock, the pavilion seeks relation with the environment through its form, scale, use of textures and eventually pays an hommage to the very same stone it lays on, through a rocky ornament.

3/

location: casaletto artistic ermitage, olevano romano (italy)

4/

design & build: md-2 architects

5/

time of construction: 3 weeks

lange h

1/

the transformation and extension of a corner mixed-use building into 14 single-family apartments in south rotterdam.

2/

next to the complete internal transformation and optimalisation of the existing spaces, the project integrates an extra floor in order to give to the building the visibility it calls for as a prominent corner facing the singel.

3/

the corner has an open character directed to the public space, as its ground floor hosts a creative function and the upper floors are carved in to offer loggia's facing the water.

4/

the extension is designed in order to enhance particularities of the existing brick facades. 

5/

the building permit has been granted and the project is in a pre-execution phase.

6/

photography of the model by zuzanna zgierska

brp boz

1/

Beeldregieplan for the programmatic and architectural revitalization of Sint-Josephstraat, Bergen op Zoom

2/

Commission by the municipality of Bergen op Zoom

3/

The Sint-Josephstraat, marking the South-East border of the historic centre and dating back to its medieval fortification line, is today characterized by the recurrent vacancy of its commercial ground floors, the outdated typology of the residential upper floors, and the consequent lack of urban appropriation.

4/

Reflecting on the recent expansion of urban possibilities introduced by the municipality, our proposal presents a vision for the future of the street, basing itself on a close reading of its existing qualities and revealing its architectural diversity.

5/

The resulting principles serves as a base for the Heritage Department to assess the coming transformation projects on the street.

6/

Full booklet here

green eye

1/

study for a recreational pavilion between two lakes in the netherlands, 2022

2/

surrounded by a wealth of nature, a ‘groen oogje’ appears, providing the visitors with shade, comfort, hygiene and recreation

3/

the pavilion looks very closely at its immediate surroundings characterised by the presence of two lakes and reacts to its rich nature

4/

the walls of the pavilion tell the stories of its origin, the floor describes the meeting of different geological areas, the roof waves like water from beneath

5/

the green eye invites visitors from land and water, human and non-human, to celebrate nature in its full bloom and splendor

wsoa 2025

1/

The scenography 'Unchain These Memories' (2025) reveals Brutus' industrial past as a chain and ship anchor factory, amplifying the site's layered narratives.

2/

Over a century ago, this vast industrial complex was a hub of intense activity where steel was forged, resistance tested, and labor relentless.

3/

The scale, the heat, the smell, the sound was gruelling, impacting, leaving immaterial traces of its existence in the space for centuries.

4/

The project is a journey to resurect immaterial and physical remnants of Brutus, peeling back layers of rust and decay to reveal their untold stories.

5/

There a pile of chains, here a laying anchor, there a hanging chain with a shackle, the scenographic setting invites the visitor to test the metaphorical resistance of the space as a vessel for layered narratives.

6/

Diverse installations play the role of connector between the exhibiting artists, inviting the visitor to experience a crossroads between past, present and future.

7/

'Unchain These Memories' is our contribution for this year's Wild Summer of Art at Brutus Rotterdam, curated by Yannik Güldner and Jeanette Bisschops, bringing together the work of 50 Rotterdam-based artists under the thematic 'Traces We Keep'.

8/

Brutus Contemporary Art Space, 6000 m2

9/

Photography by Szu-Yi Wang, Aad Hoogendoorn and Laura Siliquini

10/

Short movie by Riccardo de Vecchi (Camera, Color Correction) and md-2 architects (Editing)

second skin

1/

on-going transformation project for a family house in a protected cityscape of Rotterdam

2/

the characteristic old brick facades plays a juxtaposition game with the new filigran glass facades, creating at the front and at the back transition spaces enhancing the brightness and openness of the house

3/

a third layer is introduced between the brick and the glass skins: a movable metallic curtain, modulating privacy, sunlight and interior climate, operator and actor of a play of light and life

4/

model photography by zuzanna zgierska

5/

building permit granted

h singel

1/

transformation and extension of a historical corner building in a protected city scape in Rotterdam into 7 studio's for starters;

2/

the concept of modern echo shapes the design for the new volume added to the existing brick building: the original proportions and characteristics are studied and translated into a modern and neutral appearance, both balancing with the existing and talking its own language;

3/

a series of collective spaces are complementing the 7 individual studio's: a generous collective terrace, a workshop, an interior bike storage and a collective laundry room;

4/

photography by zuzanna zgierska;

5/

the building permit has been granted and the project is in a pre-execution phase

forest flats

1/

renovation of 4 apartments for young professionals in forest, brussels.

2/

the original elements of the typical residential block are highlighted while the potential for new openings is embraced to create light, private outdoor areas and flexible rooms.

3/

private commission, completed in 2020.

tutti frutti

1/

temporary exhibition displaying the works of our master students from the rotterdamse academie van bouwkunst

2/

the result of the semester studio tutti frutti is constructed with the physical and conceptual components of the citrusveiling, a former citrus auction house in rotterdam west

3/

a light-weight rope structure is fixed on 3 existing elements of the former sample room, to form a triangular plan referring to the auction auditorium upstairs

4/

the yellow net isolates the exhibition space while playing the role of a translucentcurtain highlighting the projects

5/

47 lemons punctuate and ballast the whole system, allowing the works to be fixed firmly on the vertical ropes

6/

​citrusveiling, rotterdam architecture month 2024

7/

photography by riccardo de vecchi

rotterdam epiphanies

1/

The phenomenon of epiphany forms the basis for the design method presented in this project. Applied as a case study in the heart of Rotterdam, the process leads to a series of interventions, means of activation for spatial awareness in the public space.

2/

By means of collages and with the help of historical analogies, a second nature of the place is put in the spotlight. The analogies stimulate the collective memory and form the pattern for the physical transformation of the location.

3/

In the purely commercial center of Rotterdam, the "Rotterdam Epiphanies" appear, moments of recognition of the environment which is at the same time difficult to read and an icon of progress. The designed interventions result from the recognition of unseen medieval ingredients within a modern body. This contradictory identity is revealed through the manipulation of existing compositions and the treatment of site-specific material and symbols. The user turns away for a moment from the commercial environment and recognizes it as a place, and as an opportunity for appropriation and use.

4/

Specific and everyday, justified and speculative, the components of this project are placed in confrontation to renew and enrich the existing content of urban environments. Just as the surrealists reacted to the worn-out content of their time through a systematic rearrangement of its components, the designer is able to generate striking revelations affecting the contemporary viewer, and in this way recognize the potential for constant renewal in existing environments loading and reloading places with meaning.

5/

Rotterdam Epiphanies is the master graduation project of Mahaut Dael and Michal Dlugajczyk at the Rotterdamse Academie van Bouwkunst. The project was developed under the mentorship of Marius Grootveld, and nominated for the Archiprix Netherlands and International.

6/

more here

7/

book binding by Roest Rotterdam

weena case

1/

​the redevelopment of weena after the war as a central economic district became the playground for bold architecture designs.

2/

today, this central part of the city is cold, windy, the plinths are blind or unoccupied, the upper floors anonymous.

3/

the surrealist technique cubomania is translated into an architectural design method and used in order to reshuffle the facade panels of the towers of weena.

4/

the facades are the crucial boundaries between outside and inside, between public and private, and thus the key elements for the transformation of the context.

5/

implementing this technique allows to rethink the skin of the isolated sculptures to form an operator of civic and architectural collectivity.

6/

contribution to prix de rome 2022: healing sites

the arch

1/

exhibition < no time to waste - current traces 2 > at architectural gallery omi rotterdam (02.2025)

2/

slice it. crush it. crumple it. press it. melt it. agglomerate it. decompose it. assemble it. mix it. remix it. upgrade it.

3/

the installation presents the results of our research inspired by the collaging work of jiri kolár, exploring alternative re-use of demolition materials in rotterdam.

4/

each stone of the arch expresses its own character deriving from the chosen collaging technique, the found materials and the extracted inherent meanings.

5/

the colourful composition invites the visitor to encounter alternatives to tabula rasa, envisioning the wide spectrum of constructive, aesthetic and intangible qualities of the disregarded matter, and opening new horizon to upgrade reality in its built environment.

6/

the research was supported by the talent development grant from the stimuleringsfonds

7/

photography of the arch by riccardo de vecchi

8/

cross-disciplinary performance < performing collage > in collaboration with food designer trang hà and sound artist roc montoriol

9/

inspired by the collaging techniques of kolář, the surreal and interactive performance gives a taste of techniques such as arbitrary crumpling, stratified layering or composed perforations, being applied to demolition materials, food, and sound, and generating unique and unexpected results.

10/

photography of the performance by samuele nobili

sorcelleries

1/

tender entry for the scenography of the temporary exhibition "sorcelleries, entre symboles et sortilèges" at hôtel départemental des expositions (620 m2) in draguignan, france - 2d place

2/

the concept for the exhibition takes inspiration from the silent film “la sorcellerie à travers les âges” evoking the representation of the world in ancient egyptian civilizations through three components: earth, mountains, and sky.

3/

this simple yet structuring cosmological vision, linked to beliefs and the birth of witchcraft in response to the inexplicable phenomena of the universe, becomes our scenographic framework for the exhibition.

4/

the tripartite division of the world naturally aligns with the three main chapters of the exhibition as well as with the three floors of the museum.

5/

the 1st floor - magic or witchcraft? universal practices - presents various beliefs and rituals through history and across the world, echoing the first dimension 'earth' and translated to a horizontal layout, displaying the diverse sub groups as islands emerging from a mystical garden

6/

the 2nd floor - witchcraft between reality and imagination - enters the unknown world referring to the second dimension 'mountains' which appears as a mysterious forest, punctuated by vertical screens marking the different chapters until the sabbat

7/

the 3rd floor - contemporary legacies - presents current practices, artistic reappropriations, and a renewed interest in astrology and spiritualities. the third dimension 'sky' is enhanced as the ceiling becomes an evocation of the cosmos - universe, planets, stars, astrology.

8/

thus the exhibition gradually ascends from the known to the unknown, then towards a form of contemporary openness, following an upward movement that is simultaneously spatial, symbolic, and narrative.

9/

scenography concept, drawings and artist impressions: md-2 architects

10/

graphic design: catalogue général

11/

illustration: matilde gony

12/

coordination: charlotte genet

13/

decor forest: gonzalo correa

from where we know

1/

scenography for the graduation show 2021 of the graphic design department of the royal academy of the hague.

2/

exhibition design, workshop and collective build-up with the 47 students

3/

the visual identity of the graduates is translated into a 3-dimensional system of metallic rods, symbol of the constellation of projects, data, students, and their interconnections

4/

the rigid grid is enhancing the structure of the ceiling while the vertical rods are carrying the projects from above, connecting the visitor evolving on the free space of the floor and the network of installations

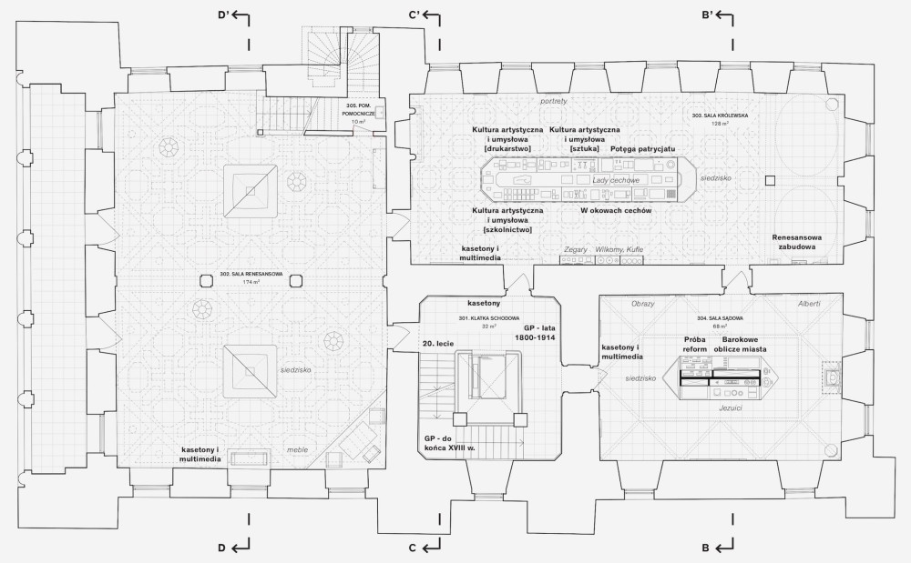
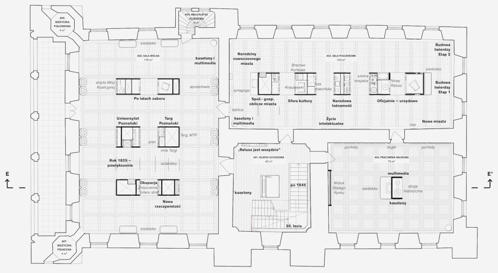
ratusz poznań

1/

competition entry for the permanent scenography in poznań town hall (900 m2) - 1st prize

2/

the presented concept for the permanent exhibition reinterprets the brief as a parallel narrative about the history of poznań and the history and renaissance architecture of its town hall.

3/

in response to the strong character of the building, the principle of a "room within a room" is proposed for the scenography. its goal is to leave the perimeter of the historic interiors free, allowing visitors to experience the sublime architecture in its full scale, while the central sections of the rooms are occupied by compact and modular exhibition spaces hosting in total a thousand of historical and artistic artefacts.

4/

the concept is inspired by one of the emblematic architectural models of the renaissance – leon battista alberti's tempietto del santo sepolcro in the cappella rucellai in florence. in this typology, the exterior shell of the structure serves a representative and communicative function, while the interior becomes a place of discovery and a more intimate connection with the content.

5/

a unified visual language connects all the rooms into a complete narrative based on recurring compositional principles, proportions, and detail, enhancing visitor orientation and the clarity of individual themes while celebrating the diversity of existing spaces.

6/

the colour palette derives directly from the colours of the town hall façade and the renaissance hall vault: beige, gold, light blue, pale green, and pale red.

7/

definitive project on-going, realisation in 2027

zm151

1/

transformation of a former shop into 2 single-family apartments in the north of rotterdam.

2/

the fully built ground floor is partially demolished in the back to create a garden and bring light into the flats.

3/

the plan splits the long and narrow apartment in two areas, the day- and night zones, with the implementation of a central core integrating the wet rooms and the staircase to the upper sleeping rooms.

4/

the new windows in the front facades bring back the original proportions and divisions of the early 20th century building, long gone through the years and diverse occupants.

5/

private commission, completed in 2024.

dom lekarza

1/

dom lekarza, on-going transformation project for a medical centre in bielsko biala, poland

2/

the project involves the renovation and expansion of an existing protected single-family house to a flexible medical centre in a central area of the city. the total net usable area is 375 m2.

3/

the transformation uncovers and restores the historical details of the main building, such as window joineries and facade friezes, while the new structure conceptually translates the existing through details, proportions, and a dematerialisation of the facade.

4/

a central patio becomes a visual link between the old, the new, and the exterior garden.

5/

functionally, this hierarchy is replicated by adapting the existing building's ground floor to accommodate the facility's technical functions, becoming its core.

6/

the new structure's format generates the necessary space with simplicity, clarity, and flexibility as primary goals.

7/

the project includes architectural and interior design including technical installations such as lighting and ventilation.

zaamslag

1/

renovation of 'het wapen van zeeland', one of the oldest buildings in the zaamslag.

2/

the 19th century mixed-used building is converted to 5 comfortable apartments with view to the main square and common parking facilities, garden en roof terrace.

3/

to strengthen the character of the protected building, the design for the new side facade hosting the garage and the entrance to the upper flats looks for contrast with the main facades.

4/

construction ongoing, delivery 2025

wolf housing

1/

transformation and extension of a mixed-used building in South Rotterdam into 8 apartments and 4 duplexes.

2/

the existing fully built ground floor is opened in its centre to create a collective outdoor space, detaching the main volume at the front from a smaller volume at the back.

3/

while the detailing of the main volume embraces the existing brick context, the materiality of the new block at the back fades in with the design of the outdoor courtyard.

4/

model photography (in a pre-phase of design) by zuzanna zgierska.

5/

building permit granted, preliminary phase to construction ongoing.

dammer

1/

‘A world where the game is reality and reality is a game’

2/

As the installation intends to find creative and playful solutions to implement to existing contexts, its form directly interacts with the visitor, ‘dammer’ of our times.

3/

A few weeks after the removal of the distancing measures in public spaces, ‘dammer’ reflects on the sense of the rule, its understanding and conceptual re-use towards new artistic appropriation.

4/

Concept and scenography at the Gallery 3 by You, Het Nieuwe Instituut Rotterdam

5/

Cross-disciplinary interventions by Cindy Bakker, Zalan Szakacs, Riccardo de Vecchi, Louise Dael, Luka Prelas and Tihomir Babic, Siep Buurke from the Koninklijke Nederlandse Dambond, and dancers from Codarts Rotterdam.

herenhuis

1/

renovation of an apartment in a 1914 mansion in the hague.

2/

the generous main volume, the characteristic stained-glass windows and other original wooden elements are preserved while the functional areas are rationalized and articulated around a central core minimizing the circulation space. 

3/

photography by zuzanna zgierska.

4/

private commission, completed in 2022.

description by design

1/

in his < slovník metod > (1991), czech artist jiří kolář presents a hundred of collaging techniques – crumplage, rollage, stratife, cubomania or chiasmage to name a few – exploring new meanings and aesthetics through surgical manipulations of old magazines, postcards, censured books or artistic reproductions.

2/

the surrealistic methodology of the artist establishes the ground for our research < description by design > led, exploring alternative re-use of demolition materials in rotterdam.

3/

the experimentations lead to a layered up-cycling of material and immaterial components of the city's built environment, extracting and recharging its existing potentials and refecting on its constant transformation.

4/

a preliminary installation was shown at the dutch design week as part of the collective exhibition < stimuleringsfonds present talent > (eindhoven, 2024).

5/

the research was funded by the talent development grant from stimuleringsfonds and supported by czech cultural institution such as the museum kampa and the national gallery in prague, or the gallery benedikta rejta in louny.

6/

video by jonathan sipkema and chris groos

kulturni dum

1/

competition entry for the transformation of the kulturní dům in ustí nad orlicí (cz)

2/

the extension of the cultural center on the northwest corner creates a visual connection towards the city center, linking it with the educational area of ustí nad orlicí

3/

the public character of the building is strengthened by the visual opening of the ground floor and by the accentuation of its specific architectural and artistic detailing

4/

the original 45° corners on the front facade direct the design for the new envelope of the cultural center, multiplying its visual connection with the surroundings while referring to the universal stage design

5/

august 2024

on stage

1/

on stage - scenography for the master graduation show of the rotterdam academy of architecture, huidenclub rotterdam, 2025

2/

as red curtains set the tone for this ceremonial celebration of the graduation process and results, a collective space is created as a stage for encounters, presentations and open discussions around emerging thematics

3/

set within the corridor of the huidenclub—originally a tannery—the exhibition embraces the building’s history and acts as a second skin revealing the 17 projects

4/

the triangular geometry of the space is embraced to create a sequence of scenes, responding to the programmatic needs of the show while metaphorically pointing toward new perspectives

5/

'on stage' is an exhibition space, a ceremonial hall, a dining room, a debating arena, and even a dance floor

6/

pictures by riccardo de vecchi

on our own time

1/

design and collective build-up of the graduation show 2020 of the graphic design department of the royal academy of art in the hague.

2/

the metal stud structure and concrete foundations fade in the existing context of the department while the diamond shape layout leads the visitor through the 38 installations.

3/

the structural system and chosen materials allow graduates to appropriate the design to expose their work in a unique and flexible way.